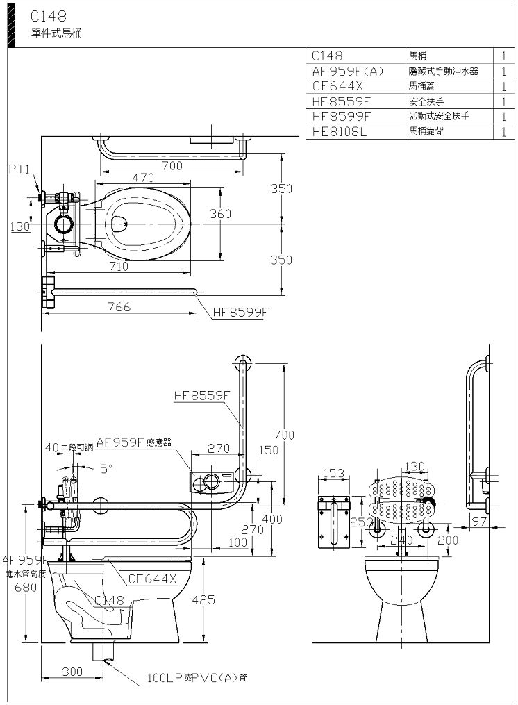
BFF-148

編號 155-93
單位 待修改
價格 60200
供應商 和成欣業股份有限公司
產品所在地 台灣
產地 台灣
規格 710x360x425mm
用途 衛浴設備
標章

產品資訊

產品規格

牆壁至排水管中心:300mm
適用水壓範圍:1~5kgf/c㎡ 
符合建築物無障礙設施設計規範
沖洗方式:虹吸式
適用馬桶座尺寸:470mm

尋找相關產品